Tjalk 39, Loosdrecht

1231 TT Loosdrecht
Energielabel C
  • 2-onder-1 kapwoning
  • 182 m2 woonoppervlak
  • Zonnige tuin
  • Vijf slaapkamers
  • Parkeren op eigen terrein
Vraagprijs
€ 890.000 k.k.
Soort constructie
Bestaande bouw
Type
2-onder-1-kapwoning en eengezinswoning
Locatie
In woonwijk
Woonoppervlakte
182 m²
Perceel
314 m²
Inhoud
658 m³
Bouwjaar
1980
Aantal slaapkamers
4 Slaapkamers
Tuin
Achtertuin en voortuin
Garage type
Geen garage
Verwarming
C.v.-ketel
Energielabel
C Hoe kan ik mijn huis verduurzamen? Huis verduurzamen?
Uitgelicht

Voel jij je al thuis?

182m2 woonoppervlak!

Comfort

Sfeervol en licht

Deze royale 2-onder-1-kapwoning biedt een indrukwekkende woonoppervlakte waar je volop van kunt genieten. De woning beschikt over een riante woonkamer met een goede indeling. Daarnaast geniet je van parkeergelegenheid op eigen terrein. 

De woonkamer is een heerlijke ruimte om in te vertoeven, met grote ramen en een schuifpui die zorgen voor een prachtige lichtinval. De vloer beschikt over een natuurstenenvloer en open haard. Via de schuifpui stap je zo de zonnige achtertuin in, perfect voor wie houdt van binnen- en buitenleven in balans.

Compleet

Inbouwapparatuur

Twee badkamers

De keuken is volledig ingericht met inbouwapparatuur zoals een inductiekookplaat, combi-magnetron, koelkast, afzuigkap en vaatwasser. Deze moderne keuken biedt niet alleen comfort, maar ook de praktische ruimte die nodig is voor een gezin.

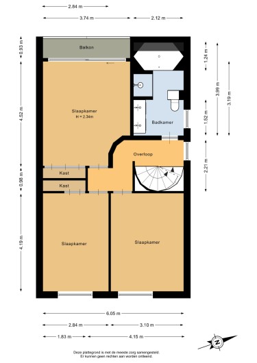
Deze woning beschikt over twee badkamers. De badkamer op de eerste verdieping is stijlvol ingericht met een ligbad, een douche, een dubbele wastafel en een toilet. De badkamer op de tweede verdieping beschikt over een whirlpool, douche en wastafelmeubel. Beide badkamers zijn perfect om te ontspannen na een drukke dag.

Vijf slaapkamers!

Mogelijkheden

Balkon

Met vier ruime slaapkamers zijn er veel mogelijkheden. Op de eerste verdieping vind je drie slaapkamers, waaronder één met toegang tot het balkon. De tweede verdieping biedt nog twee slaapkamers. Hoe deel jij het in?


Diepe tuin

Voormalige garage

Prettige locatie

De diepe achtertuin is echt een fijne toevoeging aan de woning. Hier geniet je van de zon, terwijl je voldoende ruimte hebt om een fijne zithoek of speelplek te creëren. De tuin biedt rust en privacy.

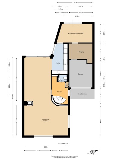
De voormalige garage is omgebouwd tot een multifunctionele ruimte. Momenteel dient deze als berging en wasruimte en er is ook een aansluitende kamer die perfect is als bijvoorbeeld thuiskantoor. Daarnaast biedt de woning extra opbergruimte op zowel de eerste als de tweede verdieping.

De woning is ideaal gelegen in Loosdrecht, een plek waar natuur en stadsvoorzieningen perfect samenkomen. Op korte afstand vind je de Loosdrechtse Plassen, de heide en andere recreatiegebieden. Tegelijkertijd zijn dagelijkse voorzieningen zoals winkels, scholen en openbaar vervoer binnen handbereik. Bovendien ben je ongeveer binnen 10 minuten in het centrum van Hilversum. Perfect!

Wil je hier meer over lezen?

Download de brochure

Vragen over deze woning?

Onze verkoopmakelaar Dirk Schipper staat voor je klaar.
Stel een vraag
Omslagfoto brochure

De verkoper vertelt

Welkom bij deze riante 2-onder-1 kapwoning! Dit fijne familiehuis heeft maar liefst 182 m2 woonoppervlak en biedt daarmee veel mogelijkheden. Laat je verrassen door de prettige indeling, de royale leefruimte, vijf slaapkamers, twee badkamers én een zonnige en ruime tuin. Gelegen in een rustige omgeving, dichtbij prachtige natuur. Kom je het zelf ontdekken?

Wij gebruiken foto's van freepik.com